09JUL 2013
© Farshid Moussavi architecture City officials released the news this week, naming Farshid Moussavi Architecture as winner of the Jardins de la Lironde competition.
© Farshid Moussavi architecture
© Farshid Moussavi architecture
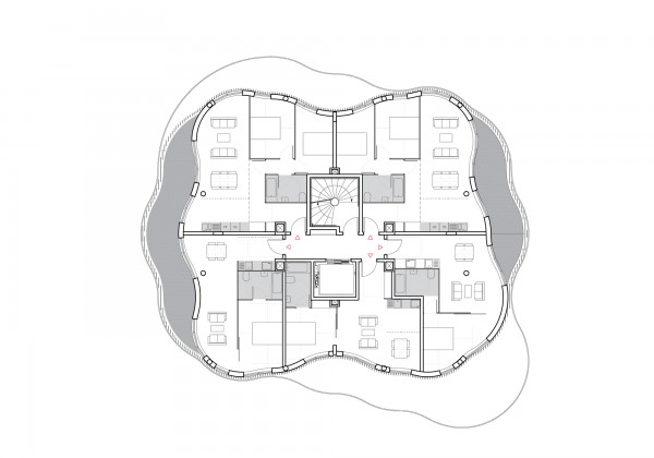
The 11-story tower’s unique shape will offer residents expansive balconies with coastal views and a ground level restaurant.
© Farshid Moussavi architecture Construction is expected to begin in 2014, marking the first phase of a master plan to construct 12 new buildings in the Port Marianne district.
© Farshid Moussavi architecture
© Farshid Moussavi architecture.
© Farshid Moussavi architecture
© Farshid Moussavi architecture
© Farshid Moussavi architecture
© Farshid Moussavi architecture
© Farshid Moussavi architecture
© Farshid Moussavi architecture
© Farshid Moussavi architecture
© Farshid Moussavi architecture
Jardins de la Lironde / Farshid Moussavi
Posted in Architecture - Housing by * FORMAKERS
This unconventional stack of shifting floor plates forms what will soon be a new, 36-unit apartment block in French city of Montpellier.













Comments
No comments
Sign in »